Pasiūlymas Pasiūlymas | Skelbimas neaktualus

Namas siauliuose ,medelyne be tarpininku /tinka 2 seimom/


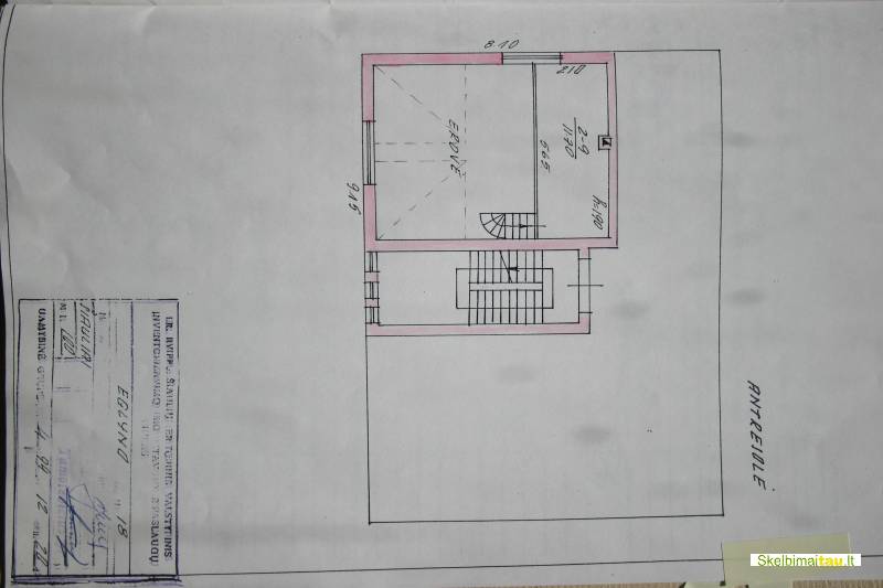
Parduodu raudonu plytu nama Siauliuose ,Medelyne, 1995 m. ,2-u atskiri iejimai ,gyv.pl. 2-ame aukste - 125 kv.m. /4-i kamb. ,virtuve , vone ,wc atskirai. Originalus isplanavimas.Svetaine -45 kv.m. per 2-u aukstus su zidiniu ,2-u dideli balkonai .Plius : mansarda -80 kv.m. su vidiniu balkonu virs svetaines /2-u kamb. -58 ir 22 kv.m. ,wc - 3-iame aukste / .Visur kietmedzio parketas ir durys . Langai ir durys i balkonus plastikiniai . Pusrusyje - pirtis ,baseinas ,dusas ,wc, poilsio zona ,garazas 2-iem auto.,katiline ,sandeliai- 2.Po garazu rusys -22 kv.m. .Viso pl. su laiptine -270 kv.m. Pilnai irengtas .Apsildomas kietu kuru ,galima ir dujomis .6 a. sklypas krastinis ,st. siltnamis ,sodas ,darziukas ,gelynai , artez. grezinys/galimybe naudotis savu vandeniu/ .Visos miesto komunikacijos .Gatve asfaltuota.Autobuso st.: 100 ,400m ,500m..4-ios parduotuves -300m.,500m.,800m.,1200m. .Vaiku darzelis ,mokykla -1200m. Kaina-67500 eur. Galimas keitimas i 1-2 butus Siauliuose arba Vilniuje su priedu . Papildoma informacija: namo 1-ame aukste irengtos pagalbines patalpos komercijai / smulkiai gamybai ,sandelevimui ,biurui ir pan./ Ju plotas -108 kv.m. : 4-i kamb. , vonia ,wc atskirai , prieangis , atskiras iejimas is kiemo puses , 2-u dideli balkonai , visos durys uosio masyvas , galima irengti atskira buta su autonominiu apsildymu , pilna isores ir daline vidaus apdaila . Viso namo su 1-u aukstu kaina - 85500 eur.
Namas siauliuose ,medelyne be tarpininku /tinka 2 seimom/
Namas siauliuose ,medelyne be tarpininku /tinka 2 seimom/
Namas siauliuose ,medelyne be tarpininku /tinka 2 seimom/
Namas siauliuose ,medelyne be tarpininku /tinka 2 seimom/
Namas siauliuose ,medelyne be tarpininku /tinka 2 seimom/
Namas siauliuose ,medelyne be tarpininku /tinka 2 seimom/
Namas siauliuose ,medelyne be tarpininku /tinka 2 seimom/
Namas siauliuose ,medelyne be tarpininku /tinka 2 seimom/
Namas siauliuose ,medelyne be tarpininku /tinka 2 seimom/
Namas siauliuose ,medelyne be tarpininku /tinka 2 seimom/
Namas siauliuose ,medelyne be tarpininku /tinka 2 seimom/
Namas siauliuose ,medelyne be tarpininku /tinka 2 seimom/
Namas siauliuose ,medelyne be tarpininku /tinka 2 seimom/
Namas siauliuose ,medelyne be tarpininku /tinka 2 seimom/
Kaina: 67500 .
Autorius: Kestas
(Paieškoti daugiau šio autoriaus skelbimų)

Paieškos žodžiai šiam skelbimui: raudonu plytu namas siauliuose
http://skelbimaitau.lt/ ©2026      Pridėti skelbimą  |  Informuotojai  |  Visi skelbimai  |  Naujienos  |  Informacija  |  Kontaktai  |  Vartotojo sutikimas